Share

FOR MR.RAJESH at ORAGADAM

FOR MR.RAJESH at ORAGADAM



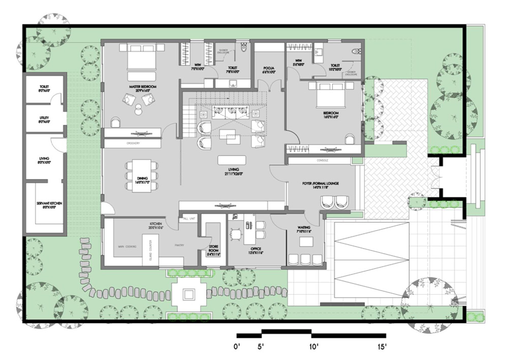
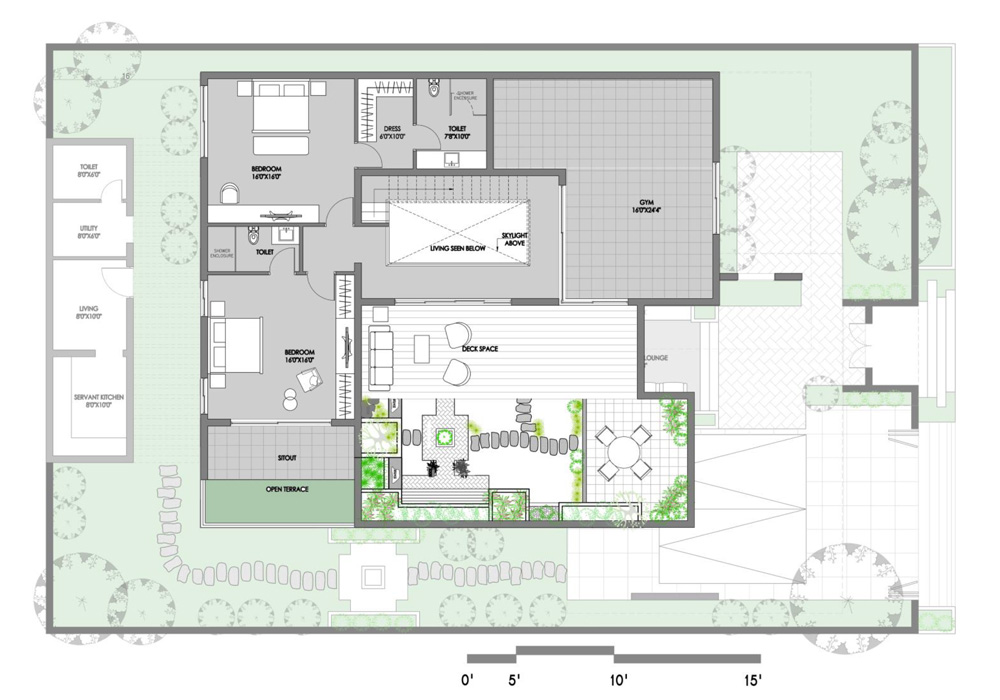
Project Details

Contemporarily designed residential bungalow to match with the client’s expectation using structural expertise for the cantilever roof top
Residence architecture FOR MR.RAJESH @ ORAGADAM 4500 sqft spacious residential bungalow in oragadam . Designed for complete vastu and to match with client’s need. The bungalow has been proposed with beautify landscape and hardscape on all 4 sides